Arbaz, charmant chalet de 4.5 pièces de 143 m2 avec terrasse couvert et un grand garage

Route de Pierre Fendue 36, 1974 Arbaz

CHF 880'000.-
1
2
3
4
5
6
7
8
9
10
11
12
13
14
15
16
17
18
19
20
21
22
23
24
25
26
27
    27 photos     OpenStreetMap     Fichier ou plan   
  • Prix de vente : CHF 880'000.-
  • Surface habitable : ~ 143 m²
  • Surface de la parcelle : ~ 547 m²
  • Volume : ~ 413 m³
  • Disponible : A convenir

Description

Ce charmant chalet, construit en 1993, est situé sur une parcelle de 547 m2 à la Route de Pierre Fendue 36 sur la Commune d’Arbaz, à 1’277 m d’altitude.

La situation du bien est idéale, sans aucun vis-à-vis et nichée au cœur de la nature. Il offre une ambiance privative et paisible, tout en se trouvant à seulement quelques minutes en voiture de la station animée d’Anzère et de toutes ses commodités (restaurants, magasins, bains thermaux, remontées mécaniques, etc.).

Très bien entretenu, ce chalet ne nécessite aucune rénovation. Sa disposition fonctionnelle offre tout le confort nécessaire pour profiter de moments chaleureux au coin du feu.

Au rez-de-chaussée, la cuisine entièrement équipée, ouverte sur le séjour, bénéficie d’une luminosité exceptionnelle grâce aux nombreuses ouvertures.

À l’étage, trois chambres aux volumes généreux offrent une superbe hauteur sous plafond avec une charpente apparente. Les nombreuses ouvertures ainsi que le balcon permettent de profiter d’une vue imprenable sur les Alpes valaisannes. Une salle d’eau avec douche et baignoire complète ce bien.

Le volume du bien est intéressant avec 413 m3 bâtis, selon la norme SIA 416, sur 143 m2 de surface brute habitable. Le chalet s’organise de la manière suivante, en considérant les surfaces habitables nettes (=balayables) :

Au rez-de-chaussée :

  • Un hall,
  • Une cuisine ouverte de 4,6 m2,
  • Un grand séjour avec poêle de 28 m2,
  • Un WC,
  • Une terrasse couverte.

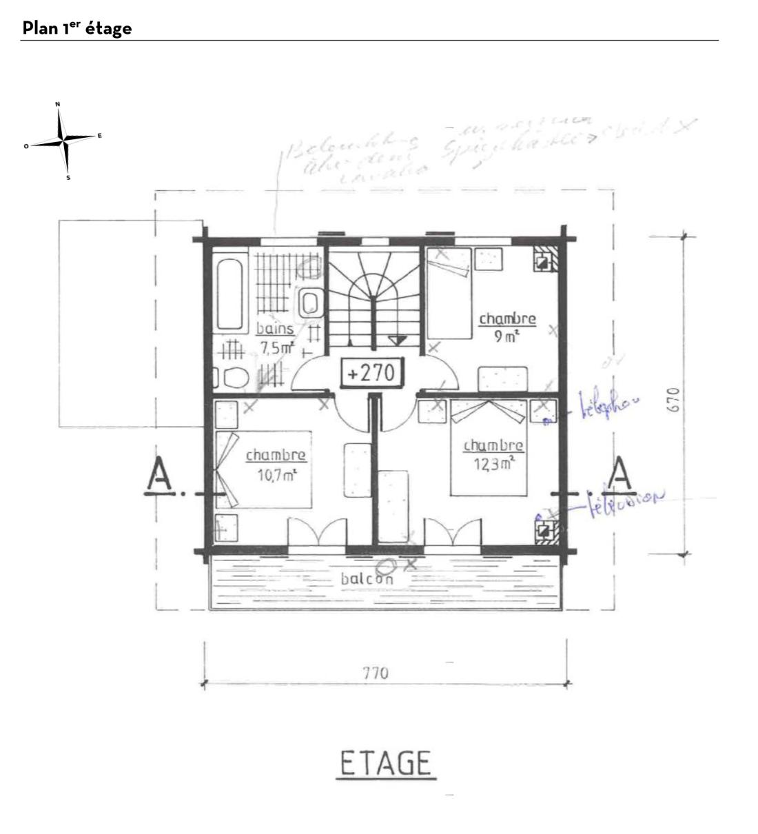
Au 1er étage :

  • Trois chambres de respectivement, 9 m2, 10.7 m2 et 12.3 m2,
  • Une salle d’eau avec douche et baignoire de 7.5 m2,
  • Les sous-pentes sont accessibles et utilisables.

Au sous-sol :

  • Une cave de 7.4 m2,
  • Un garage de 22 m2,
  • Un local technique de 8.8 m2.

Il peut être vendu aux étrangers et utilisé comme résidence secondaire.

Points forts :

  • A proximité de la station d’Anzère
  • Environnement calme et verdoyant
  • Aucune rénovation à prévoir
  • Charme et confort

La station d’Anzère propose une offre d’activités variée et attractive en toute saison. En été, elle séduit avec son vaste réseau de sentiers de randonnée, ses parcours de VTT ainsi que son centre de bien-être « Anzère Spa & Wellness ». De nombreuses animations et événements viennent également rythmer la saison estivale.

En hiver, Anzère dispose d’un domaine skiable renommé, adapté aussi bien aux familles qu’aux skieurs confirmés, ainsi que de pistes de ski de fond, d’itinéraires de raquettes, d’un snowpark, de pistes de luge et de nombreuses activités après-ski, offrant un cadre idéal pour profiter pleinement de la montagne dans une ambiance conviviale. (www.anzere.ch)

Tout afficher

Détails


  • Pièce(s) : 4.5
  • Chambre(s): 3
  • Salle(s) d'eau: 2
  • Catégorie : Chalet
  • Réf. : 2171

 Exposition


 A proximité


 Environnement


 Extérieur


 Intérieur


 Equipement


 Ensoleillement et vue


Situation géographique

Voir en Street View    Voir sur Google Maps