Cette charmante maison, construite en 1996, est situé sur une parcelle de 1’019 m2 à la Route de Grand-Pro Barra 9 sur la Commune d’Arbaz, à 1’292 m d’altitude.
La situation du bien est idéale, sans aucun vis-à-vis et nichée au cœur de la nature. Il offre une ambiance privative et paisible, tout en se trouvant à seulement quelques minutes du village d’Arbaz et de la station d’Anzère et de toutes ses commodités (restaurants, magasins, bains thermaux, remontées mécaniques, etc.).
Soigneusement entretenu, ce chalet ne nécessite aucune rénovation, bien qu’il puisse aisément être remis au goût du jour selon les envies des futurs propriétaires. Bénéficiant d’un ensoleillement optimal, il séduit par ses volumes généreux et son magnifique dégagement offrant une vue imprenable sur les Alpes valaisannes.
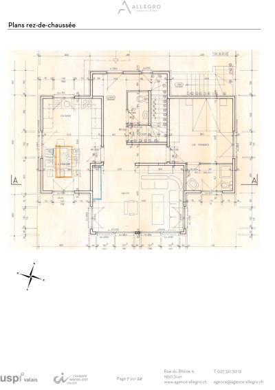
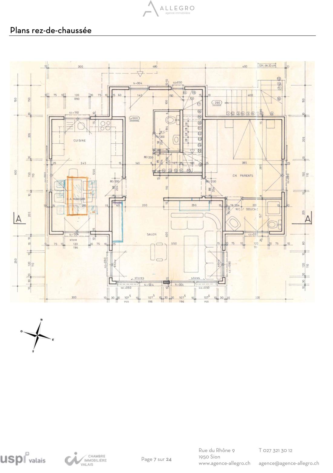
Au rez-de-chaussée, une cuisine/salle à manger fermée ainsi qu’un agréable séjour proposent un accès direct au grand jardin privatif, idéal pour profiter pleinement de l’extérieur. Une chambre avec salle de douche attenante complète harmonieusement ce niveau.
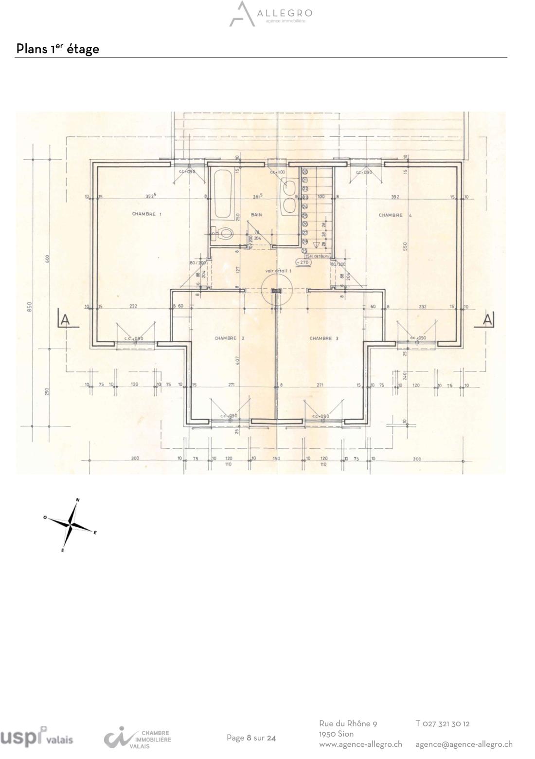
À l’étage, quatre chambres aux volumes généreux bénéficient d’une belle hauteur sous plafond avec une charpente apparente. Une salle de bain est également à disposition cet étage.
Le volume du bien est intéressant avec 790 m3 bâtis, selon la norme SIA 416, sur 240 m2 de surface brute habitable. Le chalet est organisé de la manière suivante, en considérant les surfaces habitables nettes (=balayables) :
Au rez-de-chaussée :
Au 1er étage :
Au sous-sol :
Un couvert extérieur permet également de parquer deux voitures.
Le chalet peut être vendu aux étrangers et utilisé comme résidence secondaire.
La station d’Anzère propose une offre d’activités variée et attractive en toute saison. En été, elle séduit avec son vaste réseau de sentiers de randonnée, ses parcours de VTT ainsi que son centre de bien-être « Anzère Spa & Wellness ». De nombreuses animations et événements viennent également rythmer la saison estivale.
En hiver, Anzère dispose d’un domaine skiable renommé, adapté aussi bien aux familles qu’aux skieurs confirmés, ainsi que de pistes de ski de fond, d’itinéraires de raquettes, d’un snowpark, de pistes de luge et de nombreuses activités après-ski, offrant un cadre idéal pour profiter pleinement de la montagne dans une ambiance conviviale. (www.anzere.ch)
Points forts :